Saltværksstræde 1, st.
5000 Odense C

Sagsnr. 30077

Ejendomstype

Etageareal

Energiklasse

118 m²

F

Årlig leje

Leje pr. m²

Depositum

Årlig driftsudgift

Årlig driftsudgift pr. m²

177.000 kr.

1.500 kr.

88.500 kr.

38.468 kr.

326 kr.

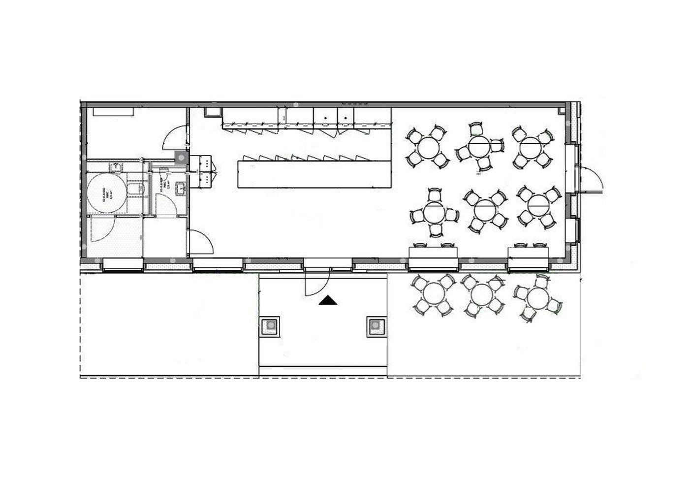
Erhvervslejemål med mange anvendelsesmuligheder

Erhvervslejemål med flere anvendelsesmuligheder midt på Odense indre havn.

Lejemålet består af i alt 118 m² og er beliggende med god synlighed fra Havnegade og ud mod den grønne plads mod syd.

Lejemålet er særdeles velegnet til publikumsorienteret erhverv og erhverv, som kan se sig selv være en del af den nye grønne bydel, som skal være med til at forbinde havnen og midtbyen.

Af anvendelsesmuligheder for lejemålet kan bl.a. nævnes café eller restaurant med udeservering, delikatesseforretning, butik eller f.eks. kunstværksted.

Lejemålet afleveres som "Whitebox" hvor A. Enggaard i hovedtræk afleverer lejemålet med følgende indretning:

I salgsarealet udføres indvendige vægge i gasbeton eller gipsvægge som spartles og males. Gulvbelægning såsom klinker, vinyl e.lign. leveres og monteres inden for nærmere aftalt beløbsgrænse. Specialbelægning kan udføres mod lejers egenbetaling.

I toiletrum, forgang og tekøkken leveres træbeton lofter og i toiletrum monteres hvide vægfliser bag vask og der leveres og monteres klinker på gulve inkl. sokkelklinke. Hvidt tekøkken leveres med hårde hvidevarer såsom køl/frys, kogeplade, emhætte, ovn og opvaskemaskine.

Lejemålet leveres med følgende installationer: ventilation, forberedt med fedtudskiller, stærkstrømskabler frem til lejemålet (125 ampere), grundbelysning i toiletrum, forrum, teknikum og tekøkken.

Lejemålet vil være klar til indflytning pr. 01.05.2024.

Ønsker du yderligere informationer om hele projektet og mulighederne for erhvervslejemålene kontakt da Nordicals Odense eller besøg pakhuskajen.dk

Læs mere

Vil du vide mere?

Simon Vinther Blach

svb@nordicals.dk

+4523111988

Kongensgade 27, 1. sal, 5000 Odense C

+4566138060

5000@nordicals.dk

Besøg vores mæglerside

Lignende ejendomme

Til top